Thiết kế khách sạn 4 tầng khách sạn 10 tầng ở thủ dầu một
Nội Dung Chính
Một mảnh đất, dù kích thước to nhỏ thế nào, thì điểm thiết yếu cũng phải phát huy tối đa được công năng sử dụng. Nhất là khi tọa lạc trên nó, không phải chỉ là một ngôi nhà phố cá nhân. Mà là một khách sạn hạng sang và hiện đại có tiếng.
Nắm bắt được yếu tốt tiên quyết đó, đội ngũ thiết kế và xây dựng Kim Trọng Phát chúng tôi đã cho ra đời một mẫu thiết kế khách sạn 10 tầng sản phẩm tối ưu hóa không gian sử dụng. Đáp ứng nhu cầu lưu trú của lượng khách hàng ngày một tăng của một khách sạn danh tiếng như khách sạn với diện tích 240m2 cho mỗi tầng dưới đây.
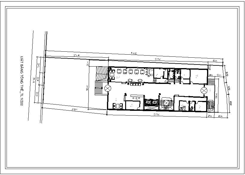
Mặt bằng tổng thể khu đất :
Được thiết kế một cách chỉnh chu từ các kiến trúc sư của kim trọng phát
Mặt tiền mẫu khách sạn 10 tầng
Với tổng diện tích sử dụng lên đến khoảng 2400m2 (10 x 240/ tầng) cho 10 tầng. Thì bạn có thể hình dung ra mẫu thiết kế kiến trúc khách sạn này trông như một tòa tháp cao chót vót. Tuy nhiên, chiều cao vượt trội đôi khi lại có khả năng gây cảm giác khô cứng.
Do đó, chúng tôi đã quyết định phủ kính gần như toàn bộ mặt tiền của 10 tầng. Chính bởi lý do, sự trong suốt chính là thứ tạo nên nét sang trọng, mềm mại và tinh khiết nhất.
Chưa dừng ở đó, mặt tiền khách sạn của 8 tầng lầu còn được cách điệu khi chia làm 2 nửa. 1 nữa là ban công kính cao ngang ngực người đứng đảm bảo an toàn.
Nửa còn lại, cũng là điểm nhấn biểu tượng của khách sạn, được loại bỏ ban công và phủ kính bo tròn từ sàn lên sát trần. 8 tấm kính cong nối nhau liên tục tạo thành một cột trụ kính khổng lồ được kết thúc bằng tổ hợp huy hiệu, tên khách sạn và phần đỉnh trang trí như một vương miện.
Chi tiết bên trong mẫu thiết kế kiến trúc khách sạn 10 tầng
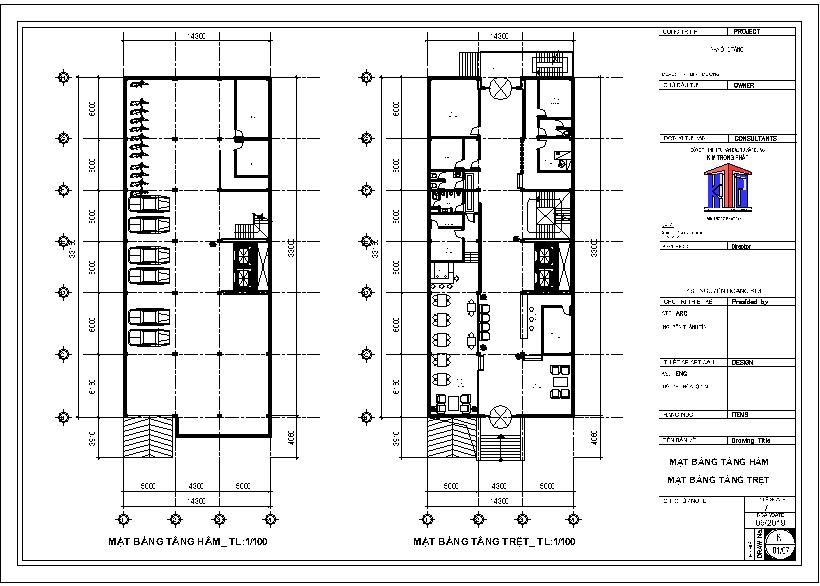
Tầng hầm
Có 2 phòng kỹ thuật hiện đại điều khiển toàn bộ hệ thống khách sạn. Diện tích gần 200m2 còn lại được dùng làm chỗ để xe.
Tầng Trệt
Ngoài sảnh chính, quầy tiếp tân, phòng làm việc và phòng giám đốc, thì còn có sảnh chờ rộng rãi đến gần 100m2.
Tầng 1-8
Ấn tượng với hai nhà hàng với sức chứa lên đến 50m2 cho mỗi không gian. Phần còn lại được dùng làm khu bếp, kho và 2 phòng loại 1 & loại 2 cho khách.
Mời quý khách xem thêm : Xin phép xây dựng Bình Dương
Liên Hệ : Công Ty TNHH Tư Vấn Đầu Tư Xây Dựng Kim Trọng Phát
Địa chỉ : 23 Lê Thị Trung, Phú Lợi, Thủ Dầu Một, Bình Dương
Email : kimtrongphat@gmail.com
Điện thoại : 0274.6512361
Hotline : 0977.44.32.32 – kinh doanh : 0908.005.622








